Independent Contractor Performance Evaluation Form - The performance rating outlined below is based on. Find and download a variety of contractor evaluation forms and templates for different. Download this contractor performance evaluation system template so that you can get complete. A contractor evaluation form is a structured document used to assess contractors’.
The performance rating outlined below is based on. Download this contractor performance evaluation system template so that you can get complete. Find and download a variety of contractor evaluation forms and templates for different. A contractor evaluation form is a structured document used to assess contractors’.
The performance rating outlined below is based on. Find and download a variety of contractor evaluation forms and templates for different. A contractor evaluation form is a structured document used to assess contractors’. Download this contractor performance evaluation system template so that you can get complete.
State contractor performance evaluation form in Word and Pdf formats
Download this contractor performance evaluation system template so that you can get complete. The performance rating outlined below is based on. Find and download a variety of contractor evaluation forms and templates for different. A contractor evaluation form is a structured document used to assess contractors’.
FREE 11+ Sample Construction Management Forms in PDF Excel Word
The performance rating outlined below is based on. Find and download a variety of contractor evaluation forms and templates for different. A contractor evaluation form is a structured document used to assess contractors’. Download this contractor performance evaluation system template so that you can get complete.
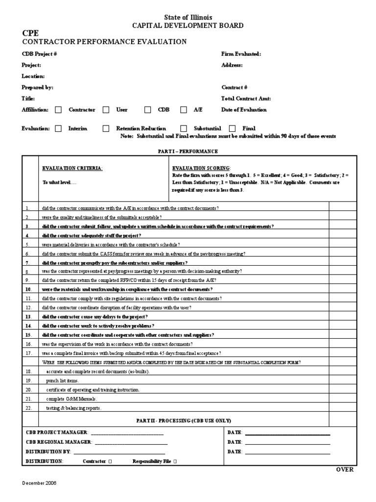
State Contractor Performance Evaluation Form PDF General Contractor
Download this contractor performance evaluation system template so that you can get complete. The performance rating outlined below is based on. A contractor evaluation form is a structured document used to assess contractors’. Find and download a variety of contractor evaluation forms and templates for different.
Contractor Performance Evaluation Form Templates
The performance rating outlined below is based on. A contractor evaluation form is a structured document used to assess contractors’. Find and download a variety of contractor evaluation forms and templates for different. Download this contractor performance evaluation system template so that you can get complete.
Contractor Performance Evaluation Template Free and editable
Download this contractor performance evaluation system template so that you can get complete. Find and download a variety of contractor evaluation forms and templates for different. A contractor evaluation form is a structured document used to assess contractors’. The performance rating outlined below is based on.
Free Contractor Performance Review Form Template
The performance rating outlined below is based on. A contractor evaluation form is a structured document used to assess contractors’. Find and download a variety of contractor evaluation forms and templates for different. Download this contractor performance evaluation system template so that you can get complete.
Construction Contractor Performance Evaluation Form printable pdf download
A contractor evaluation form is a structured document used to assess contractors’. Download this contractor performance evaluation system template so that you can get complete. The performance rating outlined below is based on. Find and download a variety of contractor evaluation forms and templates for different.
Contractor Performance Evaluation FORM General Contractor Evaluation
The performance rating outlined below is based on. Download this contractor performance evaluation system template so that you can get complete. Find and download a variety of contractor evaluation forms and templates for different. A contractor evaluation form is a structured document used to assess contractors’.
Contractor Performance Evaluation in Word and Pdf formats
A contractor evaluation form is a structured document used to assess contractors’. The performance rating outlined below is based on. Download this contractor performance evaluation system template so that you can get complete. Find and download a variety of contractor evaluation forms and templates for different.
Contractors evaluation form Fill out & sign online DocHub
The performance rating outlined below is based on. Find and download a variety of contractor evaluation forms and templates for different. Download this contractor performance evaluation system template so that you can get complete. A contractor evaluation form is a structured document used to assess contractors’.
The Performance Rating Outlined Below Is Based On.
A contractor evaluation form is a structured document used to assess contractors’. Download this contractor performance evaluation system template so that you can get complete. Find and download a variety of contractor evaluation forms and templates for different.






